| Basse saison | Moyenne saison | Haute saison |
|---|---|---|
| € | € | € |
Appartement en résidence
MONTPELLIER (34090)
Réf.
34488384
Réf.
201
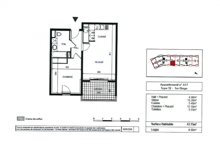
- Surface 43 m²
- Pièce(s) 2 pièce(s)
- Chambre(s) 1 chambre(s)
- Terrain NC
Dans la résidence L'ENTRACTE située à MONTPELLIER rue de la Galéra, l'agence DOMIS vous propose à la location :
Charmant T2 de 43.15 m² composé d'une entrée avec placard, un séjour ouvert sur cuisine aménagée et semi-équipée (plaques vitrocéramique, hotte et four), une chambre, une salle de bain avec WC.
Les + : terrasse de 8m² et une place de parking extérieure.
Loyer 492€ + 57€ de charges comprenant : eau froide et entretien de la résidence.
Dépôt de Garantie : 492€. Frais d'honoraires : 560€ soit honoraires de visite/bail : 431€ + honoraires d'état des lieux : 129€.
DEPOT DE DOSSIER SUR NOTRE SITE DOMIS UNIQUEMENT
Disponible à partir du 18/11/2025
Logement convetionné PLS
GLI
Les informations sur les risques auxquels ce bien est exposé sont disponibles sur le site Géorisques
Notre barème d'honoraires
À proximité
de ce bien ...
Plus d'informations sur ce bien
ou
Envoyer
cette annonce à un ami
cette annonce à un ami
Votre E-mail a bien été envoyé.
Une erreur s'est produite lors de l'envoi de votre e-mail.
Veuillez réessayer à nouveau
Veuillez réessayer à nouveau

















































