Programme : NEO LAB
LATTES
-
Superficie
:
m2 - Place de parking :
- Nombre de cellules : 9
-
Disponibilité
:
4 éme trimestre 2027
BUREAUX & COMMERCES NEUFS À VENDRE / À LOUER – LATTES (34970)
En face du multiplexe CGR – À 5 minutes du centre-ville de Montpellier – Livraison prévue fin 2027
Localisation
Situé sur la commune de Lattes, cet immeuble bénéficie d’un emplacement stratégique :
En face du cinéma CGR,
À proximité immédiate du centre-ville de Montpellier,
Accès rapide à l’autoroute A9 et à la zone aéroportuaire,
Tramway à 15 minutes à pied,
Grand parking public à proximité immédiate.
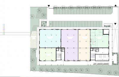
Description de l’ensemble immobilier
Ce programme neuf développe 3 085 m² à usage principal de bureaux et de commerces, au sein d’un immeuble indépendant à l’architecture contemporaine.
Surface totale de plancher : 4 460 m²
Terrain : 5 306 m²
Lots disponibles à partir de 100 m² jusqu’à 3 085 m², divisibles selon vos besoins
Commerces en RDC :
1 lot de 275 m²
1 lot de 358 m²
(Livrés bruts – tous commerces hors extraction)
Bureaux en R+1 et R+2
Prestations
ERP 3e catégorie possible
2 halls d’entrée
Ascenseur
Climatisation réversible
Carrelage
Interphone
Hall d’accueil qualitatif
Sanitaires communs et privatifs
Accessibilité PMR
Stationnement
Parking extérieur : 8 000 € HT /HH place
Parking en sous-sol : 12 000 € HT / HH place
Disponibilité : fin 2027
Pour tout complément d'information ou pour réserver dès à présent, n’hésitez pas à nous contacter.
Honoraires 3% HT du prix HT/HD.à la signature de l'acte
| Type de programme neuf | Pièce(s) | Surface | Surface terrain | Prix | Etat | Détail | ||
|---|---|---|---|---|---|---|---|---|
![]() ![]() |
Local bureau commerce | 0 pièces | 117.49 m2 | 0.00 m2 | 299 600 € * | 0.00 € TTC | Disponible | Voir |
![]() ![]() |
Local bureau commerce | 0 pièces | 117.75 m2 | 0.00 m2 | 300 263 € * | 0.00 € TTC | Disponible | Voir |
![]() ![]() |
Local bureau commerce | 0 pièces | 251.06 m2 | 0.00 m2 | 640 203 € * | 0.00 € TTC | Disponible | Voir |
![]() ![]() |
Local bureau commerce | 0 pièces | 253.08 m2 | 0.00 m2 | 645 354 € * | 0.00 € TTC | Disponible | Voir |
![]() ![]() |
Local bureau commerce | 0 pièces | 247.05 m2 | 0.00 m2 | 659 624 € * | 0.00 € TTC | Disponible | Voir |
![]() ![]() |
Local bureau commerce | 0 pièces | 284.43 m2 | 0.00 m2 | 716 764 € * | 0.00 € TTC | Disponible | Voir |
![]() ![]() |
Local bureau commerce | 0 pièces | 369.64 m2 | 0.00 m2 | 931 493 € * | 0.00 € TTC | Disponible | Voir |
![]() ![]() |
Local bureau commerce | 0 pièces | 741.51 m2 | 0.00 m2 | 1 965 002 € * | 0.00 € TTC | Disponible | Voir |
![]() ![]() |
Local bureau commerce | 0 pièces | 746.87 m2 | 0.00 m2 | 1 979 206 € * | 0.00 € TTC | Disponible | Voir |
cette annonce à un ami
Veuillez réessayer à nouveau




























